Ufficio (ex laboratorio chimico) su tre piani a Trepuzzi

Trepuzzi - via Verdi, 4 - via Deledda, 3
360.000 €
Codice:811
Caratteristiche principali
521
14
Locali
Descrizione
Immobiliare Giordano propone in vendita un ufficio situato nel centro del Comune di Trepuzzi.

L'immobile si compone di 14 vani distribuiti su tre piani, per un totale di 521 mq.
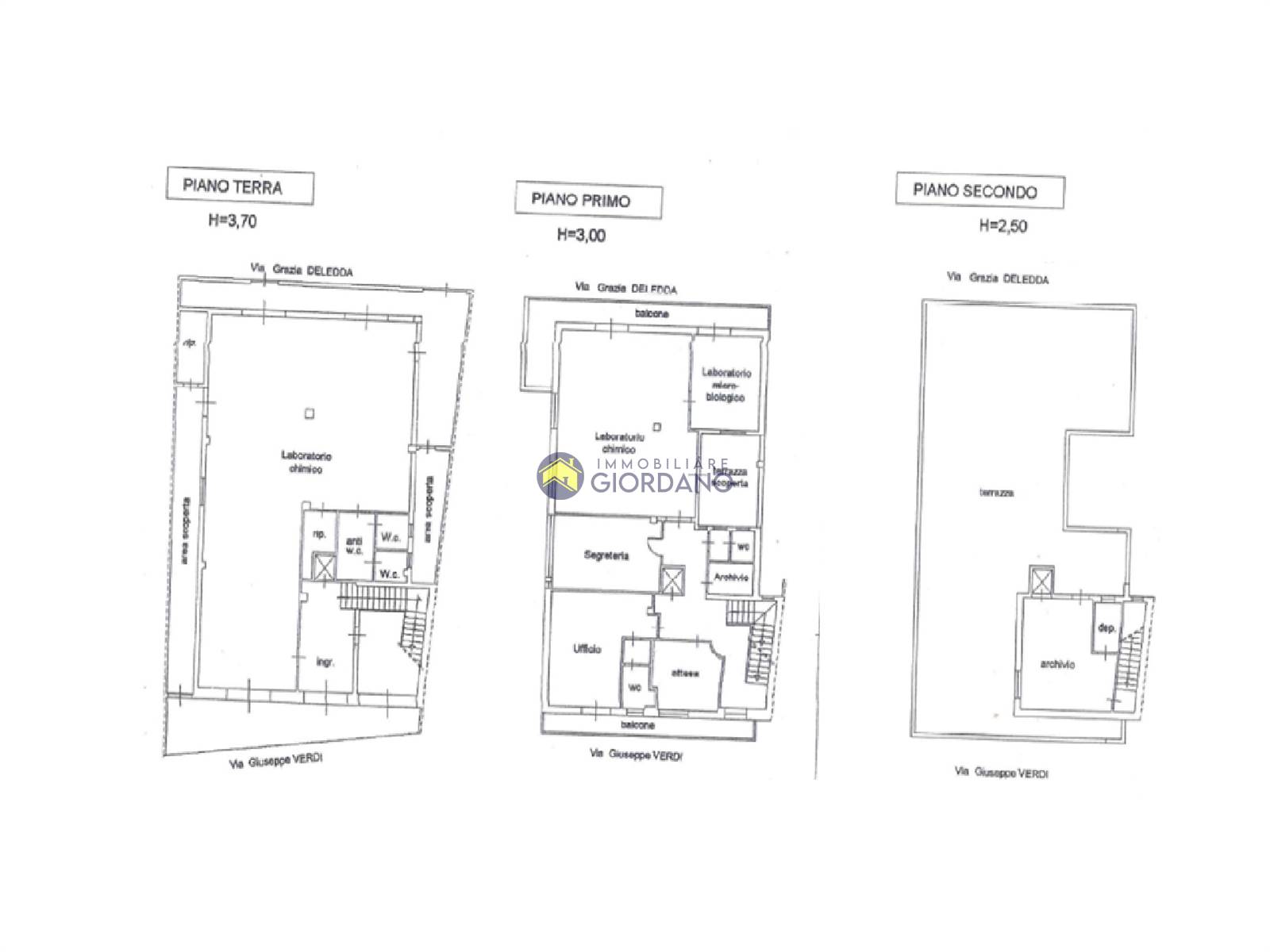
Al piano terra è composto da ingresso, ampio vano laboratorio con doppio accesso (uno su via Verdi e uno su via Deledda), vano pluriuso con accesso carrabile su via Verdi, ripostiglio, anti bagno, doppi servizi igienici, altro ripostiglio ed area scoperta.
Al primo piano è composto da sala d'attesa, anti bagno e bagno clienti, archivio, ufficio con antibagno e bagno esclusivo, segreteria, vano laboratorio chimico e altro vano laboratorio micro biologico, terrazza scoperta e balconi.
Al piano secondo è composto da deposito e archivio con predisposizione per un bagno ed ampio terrazzo e livello.
Il tutto è collegato tramite vano scala ed ascensore.

L'ufficio è attualmente destinato a laboratorio chimico ed è in ottimo stato strutturale. La posizione centrale, la metratura generosa e la destinazione d'uso lo rendono ideale per attività commerciali o professionisti del settore.
Caratteristiche
Codice:
811
Città:
Trepuzzi
Categoria:
Ufficio
Locali:
14
Mq:
521
Classe energetica:
F
Stato Immobile:
Abitabile
Posizione:
Centro
Infissi:
Alluminio Doppio Vetro
Numero Vetrine:
Quattro
Destinazione:
Commerciale
Accesso Disabili:
Nessuna Barriera
Accesso interno disabili:
Pieno accesso
Accessori
Ascensore
Doppio ingresso
Passaggio Automobilistico
Tapparelle Elettriche
Mappa
Trepuzzi - via Verdi, 4 - via Deledda, 3
Attiva i cookies e ricarica la pagina per visualizzare il contenuto
Planimetrie
Condividi su
Vuoi avere più dettagli?
Cookie preference